string(4) "2657"

Угольный барабанный паровой котел Е 1/9Р в Коврове

Версия
для печати
В наличии на складе Цена в рублях с НДС 1 815 000
Получите скидку
у менеджера
Цена на угольный барабанный паровой котел Е 1/9Р с доставкой от 1 815 000 рублей с НДС
Производительность, кг/ч1000
ТопливоТвердое, Уголь
Температура пара, не более, °C170
Давление пара, не более, МПа0.9
Доставка ТК в г. Ковров и по России
Безналичный расчет
Опросный лист
Эту продукцию можно
купить в лизинг
  • Технические
    характеристики
  • Описание
    товара
  • Комплект
    поставки
  • Дополнительно
    потребуется
  • Подключение и
    монтаж
  • Сертификаты и
    гарантии
  • Отзывы о
    продукции
  • Видео
    обзор
  • Барабанный водотрубный паровой котел
  • Компактная модель удобно размещается в маленьких помещениях котельных
  • Топка выполнена из поворотных колосников и легко очищается от шлака
  • Трубная часть имеет встроенную систему очистки от сажи без остановки котла
  • В комплект поставки входит вентилятор, комплект запорной арматуры и КИП
  • Дополнительно приобретаются автоматика, газоходы, дымовая труба и дымосос Д 3,5
  • Температура пара до 170 °С

Технические характеристики парового котла Е 1 9Р

Тип Паровой котел Е
Марка Паровой котел Е 1/9
Вид топки Ручная, Колосники
Конструкция котла Барабанный
Производительность, кг/ч 1000
Производительность, т/ч 1
Максимальная тепловая мощность, МВт 0.74
Максимальная тепловая мощность, кВт 740
Максимальная тепловая мощность, Гкал 0.64
Диапазон регулирования мощности, % 40-100
Топливо Твердое, Уголь
Низшая теплота сгорания проектного топлива, кКал/кг 5230
КПД котла на УГЛЕ, не менее, % 82
Расход УГЛЯ при максимальной нагрузке котла, кг/ч 150
Расход условного топлива, кг/ч 112
Температура пара, не более, °C 170
Давление пара, не более, МПа 0.9
Давление пара, не более, (кгс/см²) 9
Давление пара, не более, бар 9
Полный объем котла, м³ 1.46
Объем паровой части, м³ 0.16
Аэродинамическое сопротивление, Па (мм. вод. ст.) 300 (30)
Разряжение в топочной камере, Па (мм. вод. ст.) 20-40(2-4)
Объем уходящих газов, м³/ч 3185
Температура уходящих газов, не более, °С 280
Тяга Принудительная
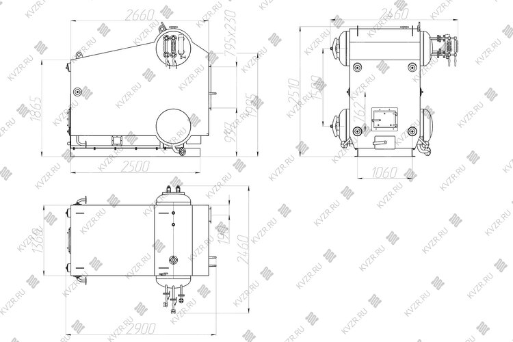
Размер топочной камеры, длина*ширина*высота, мм 1320х1060х1430
Активная площадь решетки горения, м² 1.4
Объем топочной камеры, м³ 2
Присоединительные размеры газохода уходящих газов, ширина*высота / сечение, мм/м² 795х230/0,18
Температура питательной воды, не менее, °C 50
Присоединительные размеры выхода пара, Ду 50
Присоединительные размеры по водяному тракту, Ду 32
Габаритные размеры котла, длина*ширина*высота, мм 2900*2460*2510
Масса, кг 3700
Энергоэффективность Высокая
Бренд STEAMEXPERT

Котел Е 1 9Р паровой на угле в Коврове

  • паропроизводительность 1 т пара в час;
  • максимальная температура пара 170 градусов;
  • давление пара 0.9 МПа, 9 кгс/см2;
  • тепловая мощность 0.74 МВт, 740 КВт;
  • топливо – каменный и бурый уголь;
  • тип котла барабанный.

Цена на паровой котел Е 1-9 Р угольный зависит от комплектации. Обратите внимание на комплектацию нашего завода!

Наш котельный завод также производит паровые котлы производительностью 1000 кг/ч с другими давлениями и температурой.

Комплект поставки котла нашего производства:

  • Котельный блок - 1 шт;
  • Предохранительный клапан 17с28нж Ду 50 - 2 шт;
  • Вентилятор ВЦ 14-46 №2,5 с дв. 0,55/1500 - 1 шт;
  • Вентиль 15Б1П Ду 25 Ру 16 - 1 шт;
  • Указатель уровня 12кч11бк №6 - 2 шт;
  • Запорное устройство указателя уровня 12б2бк Ду 20 - 2 шт;
  • Вентиль чугунный фланцевый 15кч16п1 Д50 Ру25 - 1 шт;
  • Клапан обратный муфтовый Ду 20 - 1 шт;
  • Клапан запорный фланцевый Ду 32 Ру 25 - 1 шт;
  • Кран трехходовой 11б38бк2 Ду 15 (под манометр, пар) - 2 шт;
  • Манометр ДМ2005Сг - 1 шт;
  • Манометр МП100 - 1 шт;
  • Трубка сифонная (Перкинса) прямая - 2 шт.

Дополнительно для подключения угольного котла Е 1/9 Р вам потребуются

  • Насос питательный CR 1-23 A-A-A-E-HQQE - 2 шт;
  • Щит управления котлом - 1 шт;
  • Водоподготовка (подбирается на основании технического анализа воды).
  • Дымосос ДН 3,5 с двигателем 3.0 кВт при работе без золоуловителя;
  • Дымосос ДН 6.3 с двигателем 5.5 кВт при работе с золоуловителем;
  • Золоуловитель ЗУ-0.8 (по желанию).

Котел Е1 9 Р на твердом топливе технические характеристики и устройство

Технические характеристики для модели паровой котел Е 1-9 Р серии Е - стальной двухбарабанный вертикальный водотрубный с естественной циркуляцией с экранированной топочной камерой и конвективным пучком, с ручной топкой паропроизводительностью 1 тонна пара в час с абсолютным давлением пара до 0,9 МПа (9,0 кгс/см2) и температурой на выходе до 170 С, может работать на твердом топливе - каменный и бурый уголь. Устанавливается в производственных котельных для выработки технологического пара, работает с принудительной подачей питательной воды.

Котел типа Е 1/9 Р твердотопливный паровой имеет устройство из основных узлов - система трубная с барабанами, топка, трубная теплоизоляция с каркасом и обшивкой, система питания, система управления, тяговое устройство.

Трубная система, выполненная в газоплотном исполнении с применением в качестве радиационной поверхности топки цельносварных экранов. Верхний и нижний барабаны, соединены между собой пучком труб, образующих конвективную поверхность нагрева. Боковые топочные экраны, включены в циркуляционный контур агрегата через боковые коллекторы, которые вварены в барабаны, а также потолочный экран, вваренный в верхний барабан и поперечный фронтовой коллектор, сообщающийся с нижними коллекторами.

Для очистки и осмотра коллекторов на их торцевой части имеются лючки. Доступ во внутреннюю часть барабанов и к трубам конвективного пучка возможен благодаря люкам барабанов. В качестве лаза для осмотра внутренних поверхностей топки используется дверка для шурования угля. Трубы конвективного пучка разделены перегородкой из жаростойкой стали, которая меняет направление потока газа и улучшают условия теплообмена. На нижнем барабане и нижних коллекторах боковых экранов имеются продувочные штуцеры.

На днище верхнего барабана размещены патрубки водоуказательной арматуры и уровнемерной колонки. Датчиком уровня воды в котлоагрегате служит уровнемерная колонка применяемая в качестве первичного прибора по регулированию уровня и защиты котла.

В верхней части обечайки верхнего барабана установлены штуцера для крепления пружинных предохранительных клапанов, главный пароотводящий штуцер, трубка крепления манометра, труба подвода питательной воды, внутри верхнего барабана смонтированы сепарационное устройство и труба ввода питательной воды.

Трубная система собрана на общей раме.

Обмуровка выполнена минераловатными матами, уложенными на штыри, приваренные к мембранам трубной системы. Для крепления теплоизоляции, а также листов декоративной обшивки, на теплоагрегате устанавливается сварной каркас, изготовленный из уголка. Фронт аппарата от колосников до уровня поперечного коллектора залит огнеупорным бетоном. Наружная декоративная обшивка, изготовленная из тонколистовой стали, предохраняет теплоизоляцию от разрушения и придает эстетический вид.

Система питания предназначена для заполнения агрегата водой и подпитки его во время работы.

Система управления предназначена для автоматического управления и защиты установки.

Подача питательной воды производится питательным насосом. В соответствии с ГОСТ для паровых котлов должно быть установлено два насоса, рабочий и резервный. Дренажи и воздушники производят дренирование трубной системы от шлама и удаление скапливающего воздуха.

За котлоагрегатом устанавливаются 2 предохранительных клапана марки 17с28нж.

Котел Е 1/9 Р угольный принцип работы

Топливо сгорает в топке. Для обеспечения нормальной работы агрегата необходимо непрерывно подавать в топку к горячему топливу воздух обеспечивать определенную скорость движения горячих газов по газоходам и удалять из агрегата в атмосферу продукты горения.

Движение воздуха и продуктов горения в котлоагрегате осуществляется при помощи тягодутьевых устройств, включающих в себя дымосос и дутьевой вентилятор.

При сжигании топлива в топке образуются дымовые газы высокой температуры. Эти газы проходят по газоходам агрегата, омывая пучки труб, по которым движется (циркулирует) вода. В результате газы отдают воде часть своей теплоты и охлаждаются, а вода нагревается и превращается в пар, собирается в верхнем барабане аппарата. Воздух в топку подается вентилятором через зазоры в колосниках. Охлажденные дымовые газы с помощью дымососа через дымоходы и дымовую трубу удаляются в атмосферу. Горячие газы омывают трубную систему, нагревают воду и производят насыщенный пар температурой до 170 градусов. При необходимости котел Е 1 9Р может производить пар меньшей температуры.

Зависимость температуры пара от давления:

Температура пара, С°115120130140150160165170
Давление пара, МПа0.070.10.170.260.380.520.60.7

Котлоагрегат должен работать с автоматикой. Заводская автоматика ограничивает предельно допустимые параметры работы и давление пара, управляет вентилятором и подпиточным насосом и регулирует уровень воды в барабане.

Температура сухого насыщенного пара в парогенераторе регулируется изменением давления пара, при необходимости снижения температуры необходимо выставить соответствующее давление пара на электроконтактный манометр по приведенной выше таблице соответствия давления и температуры.

Автоматика по заданному давлению производит управление дутьевым вентилятором и, следовательно, интенсивностью горения.

Вода подготавливается в соответствии с требованиями руководства по эксплуатации, «Правилам технической эксплуатации тепловых энергоустановок» и ГОСТ Р 51232-98. Для подбора водоподготовительной установки требуется провести химический анализ воды.

Котел Е 1-9 Р на твердом топливе подключение и монтаж

Подключение и монтаж паровой установки с давлением более 0.07 МПа и температурой пара более 115 градусов должно производится строго по проекту. Для работы агрегата необходимо получить разрешение на ввод в эксплуатацию в Ростехнадзоре. Ростехнадзор проверяет правильность выполнения монтажных и пусконаладочных работ, а также соблюдения требований правил охраны труда.

Безопасность котла

Безопасная эксплуатация котла обеспечивается выполнением требований:

  • Инструкции по эксплуатации;
  • Правил технической эксплуатации тепловых энергоустановок.

Требования к помещениям паровой котельной регламентируются СП 89.13330.2016 «Котельные установки».

Твердотопливный котел Е 1 9Р с барабанами должен управляться автоматикой безопасности, имеющей сертификат соответствия.

Одним из самых важных устройств, обеспечивающих безопасную эксплуатацию агрегата, является предохранительный клапан. Он обеспечивает сброс пара при превышении давления в котле свыше допустимого и предохраняет установку от разрушения. Необходимые условия монтажа и эксплуатации котлоагрегата представлены в паспорте и руководстве по эксплуатации.

Гарантии изготовителя

На заводе изготовителе паровой котел Е 1/9 Р твердотопливный подвергается гидравлическому испытанию давлением 1,2 МПа (12 кгс/см2).

Гарантийный срок - 24 месяца со дня отгрузки с завода.

Гарантийное обслуживание включает в себя бесплатное устранение скрытых заводских дефектов, замену деталей и узлов вышедших из строя в период гарантийного срока при условии монтажа и эксплуатации оборудования Покупателем в соответствии с его назначением, технической документацией, техническими нормами, правилами ввода в эксплуатацию и эксплуатации данного оборудования.

Купить котел Е 1 9Р

Для того чтобы купить паровой котел Е 1 9 Р на твердом топливе в Коврове, вы можете оформить заявку в отделе сбыта по телефону (38-52) 29-97-41 (42) либо оформить заявку онлайн. Наши менеджеры дадут консультацию по подбору вспомогательного оборудования для выбранной вами модели и рассчитают стоимость доставки до вашего региона и населенного пункта.

Дополнительное вспомогательное оборудование для работы парового котла Е 1 9Р

Для эффективной и надежной работы парового котла Е 1 9Р в вашей котельной вам потребуется дополнительное оборудование - автоматика ЩУК, насос сетевой и подпиточный, газоходы и переходники для газового тракта, дымовая труба. Мы предлагаем рассмотреть типовые варианты комплектации.

В случае если у вас на объекте уже имеется насосное и тягодутьевое оборудование, мы можем проверить совместимость парового котла Е 1 9Р нашего производства и вашего оборудования.

Для проверки соответствия подпиточной воды для котлоагрегата требованиям к питательной воде, направьте нам химический анализ воды, в случае необходимости ее корректировки мы предложим вам систему водоподготовки котловой воды.

Можем изготовить нестандартные узлы для выполнения быстрого монтажа котла - газоходы и узлы обвязки.

Типовую схему монтажа котла вы можете посмотреть во вкладке схемы подключения и монтаж.

Автоматика парового котла Е 1/9 барабанного типа на твердом топливе выполняет следующие функции:

  • ручной пуск котла, вентилятора и насоса;
  • автоматическое поддержание заданного давления пара на выходе из котла;
  • регулирование уровня воды в барабане котла.

Обеспечивает безопасность работы, выполняя аварийную остановку котла, вентилятора и насоса при:

  • понижении уровня воды в котле ниже критического уровня;
  • повышении уровня воды в котле выше критического уровня (перелив);
  • повышении давления пара в котле; понижении разряжения в топке котла.
Цена 152 000 рублей с НДС

Щит парового котла на твердом топливе выполняет следующие функции:

  • ручной пуск котла, вентилятора и насоса;
  • автоматическое поддержания уровня воды в котле;
  • автоматическое поддержание заданного давления пара на выходе из котла.

Выполняет аварийную остановку котла, вентилятора и насоса при:

  • понижении уровня воды в котле ниже критического уровня;
  • повышении уровня воды в котле выше критического уровня (перелив);
  • повышении давления пара в котле.
Цена 168 000 рублей с НДС

Используется в качестве питательного насоса в производственных паровых котельных

Цена 129 200 рублей с НДС

Дымосос для удаления дымовых газов из котла.

Цена 55 900 рублей с НДС
  • Компактный золоуловитель для твердотопливных котлов
  • Может устанавливаться как сразу за котлом, так и на улице
  • Универсальная конструкция позволяет организовать выход справа или слева, в зависимости от компоновки газоходов
Цена 50 000 рублей с НДС

Дымосос для удаления дымовых газов из котла.

Цена 101 400 рублей с НДС

Разрабатывает индивидуально на основе химического анализа воды потеребителя

Производим газоходы по индивидуальному заказу согласно схеме компоновки котельной. Системы газоходов могут включать в себя:

  • шиберы;
  • газоходы различного сечения;
  • переходы;
  • тройники;
  • карманы всасывающие дымососов.

Схемы подключения и монтаж парового котла Е 1 9Р

Энергоэффективный угольный барабанный паровой котел Е 1/9Р, предназначен для получения насыщенного пара для технологических целей в производстве. Устанавливается в производственных и промышленных котельных.

Схема подключения и монтажа
Смотреть
Скачать

Схема подключения и монтажа

Монтаж парового котла Е 1 9Р в котельной должен производиться в соответствии с проектом и с учетом требований Свода правил СП 89.13330. 2016 «Котельные установки» и «Правила промышленной безопасности при использовании оборудования, работающего под избыточным давлением, утверждены приказом Федеральной службы по экологическому, технологическому и атомному надзору от 15 декабря 2020 года N 536». Правильный монтаж котла – залог его надежной и долгой работы.

Чтобы правильно подключить угольный барабанный паровой котел Е 1/9Р в котельной необходимо оставить проемы для обслуживания оборудования во время эксплуатации. На представленной здесь схеме обозначены их размеры. Кроме того, в данной примерной схеме монтажа паровых котлов и оборудования указан перечень минимально необходимого вспомогательного оборудования.

К вспомогательному оборудованию при подключении промышленного парового котла относят - щит управления котлом, питательные насосы (1 рабочий, 2 резервный), бак запаса воды, охладитель проб отбора воды, систему водоподготовки котловой воды, дымовую трубу, систему газоходов и тягодутьевых механизмов (по проекту).

В случае если подпиточная вода не соответствует по своим характеристикам требованиям к питательной воде, необходимо предусмотреть систему водоподготовки котловой воды.

Схема {parts_subject_r}} Р без золоуловителя
Смотреть
Скачать

Схема подключения парового котла Е 1 9Р Р без золоуловителя

Если вам не требуется высокая очистка дымовых газов, котел может работать без золоуловителя. Схема подключения при этом следующая - дымовые газы выходят из котла в газоходы котельной, затем в дымосос и далее снова по газоходам в дымовую трубу. В зависимости от компоновки котельной дымосос может устанавливаться как в котельной, так и на улице. Наш завод производит газоходы и переходники к ним. Получив схему вашей котельной мы можем изготовить для вас комплект газоходов, переходников нужных размеров и сечений. На месте такие детали собираются как конструктор. Обращаем ваше внимание, что газоходы требуют изоляции, для защиты персонала от ожогов, так как уходящие газы имеют высокую температуру, а на улице газоходы требуют изоляции для избежания образования конденсата.

Схема подключения котла с золоуловителем
Смотреть
Скачать

Схема подключения котла с золоуловителем

Золоуловитель для твердотопливного парового котла Е 1 9Р Р обычно требуется устанавливать в котельных расположенных в жилой зоне. Они позволяют произвести дополнительную очистку дымовых газов перед их выбросом в атмосферу. Золоуловители нашего завода могут устанавливаться как сразу за котлом, так и снаружи котельной. Кроме очистки воздуха золоуловители увеличивают сопротивление в газовом тракте, поэтому при их установке требуется дымосос большей мощности.

Дополнительные услуги

Сертификат и качество парового котла Е 1 9Р

Паровые котлы производства Котельный завод "РЭП" соответствуют строгим стандартам качества и безопасности. Завод производит паровые котлы в соответствии с требованиями ГОСТ 30735-3001 по Техническим Условиям завода.

Котлы имеют сертификаты соответствия Техническим регламентам Таможенного союза:

  • ТР ТС 032/2013 «О безопасности оборудования, работающего под избыточным давлением».

Жаротрубный угольный барабанный паровой котел Е 1/9Р имеет гарантийный срок 24 месяца и срок работы при соблюдении правил монтажа и эксплуатации оборудования 10 лет.

Сертификат на котлы паровые Е .jpg
Сертификат на паровые котлы Е
Товарный знак на котлы паровые STEAMEXPERT .jpg
Товарный знак на паровые котлы STEAMEXPERT

Отзывы о продукции

Отзыва о товаре пока нет, будьте первыми!

Паровой котел Е 1-9 Р барабанного типа, производительность 1 т пара в час, температура пара не более 170 С°, давление пара 0.9 МПа (9) кгс/см², тепловая мощность 0.74 МВт (740 КВт), топливо - уголь. Применяется для технологических целей в производстве.

Смотреть видеообзор на

Вопрос-ответ

  • Технические
    характеристики
  • Описание
    товара
  • Комплект
    поставки
  • Дополнительно
    потребуется
  • Подключение и
    монтаж
  • Сертификаты и
    гарантии
  • Отзывы о
    продукции
  • Видео
    обзор
Документы завода
  • Сертификаты завода
  • Членство в СРО
  • Аттестованная технология сварки
  • Патенты на котельное оборудование
  • Товарные знаки
Смотреть все документы
Сертификат на водогрейные котлы на твердом и жидком топливе
Сертификат на водогрейные котлы на газе и жидком топливе
Сертификат на котлы отопительные паровые КП
Сертификат на топки
Сертификат на щиты управления
Сертификат на скиповые подъемники
Сертификат на золоуловители (циклоны)
Сертификат на конвейеры скребковые
Сертификат на дробилки
Сертификат на клапаны предохранительные
Сертификат на бункер-накопитель механизированный
Сертификат на автоматику газовых горелок
Сертификат о происхождении товара форма СТ-1
Членство в СРО
Членство в СРО
Аттестованная технология сварки
Свидетельство аттестованной технологии сварки
Патент на отопительный котел
Патент на водогрейный котел
Патент на топку водогрейного котла
Патент на водогрейный газовый котел
Патент на водогрейный котел
Патент на топочное устройство твердотопливного котла
Патент на водогрейный котел
HEATEXPERT товарный знак
KVZR товарный знак
STEAMEXPERT товарный знак
Другая похожая продукция
Котел паровой Е 1 9 Г
Лизинг
Производительность, кг/ч1000
ТопливоГаз
Температура пара, не более, °C170
Давление пара, не более, МПа0.9
1 707 000 р. Цена с НДС
Паровой котел Е 1.0 0.9 Р
Лизинг
Производительность, кг/ч1000
ТопливоТвердое, Уголь
Температура пара, не более, °C170
Давление пара, не более, МПа0.9
1 740 000 р. Цена с НДС
Котел 1000 кг пара в час до 130 °С твердотопливный
Лизинг
Производительность, кг/ч1000
ТопливоУголь, Твердое
Температура пара, не более, °C130
Давление пара, не более, МПа0.17
1 512 000 р. Цена с НДС
Вы просматривали эти товары
Котел паровой Е 1/9 Р
Лизинг
Производительность, кг/ч1000
ТопливоТвердое, Уголь
Температура пара, не более, °C170
Давление пара, не более, МПа0.9
1 815 000 р. Цена с НДС
Котел 1200 кг пара в час до 130 °С твердотопливный
Лизинг
Вид топкиРучная, Колосники
ТопливоУголь, Твердое
Температура пара, не более, °C130
Давление пара, не более, МПа0.17
1 808 000 р. Цена с НДС
Котел 1000 кг пара в час до 130 °С твердотопливный
Лизинг
Производительность, кг/ч1000
ТопливоУголь, Твердое
Температура пара, не более, °C130
Давление пара, не более, МПа0.17
1 512 000 р. Цена с НДС
Парогенератор 2000 кг 130 С на угле
Лизинг
Производительность, кг/ч2000
ТопливоТвердое, Уголь
Температура пара, не более, °C130
Давление пара, не более, МПа0.17
2 622 000 р. Цена с НДС
background